Klimahaus A – 3 Zimmer Wohnung Nähe Gericht
Zentral und trotzdem ruhig – 3 Zimmer Wohnung in Quirein…
450.000€
39043 Klausen, Italien
Zu Verkaufen
 
		Immobilien-ID :
RH-169282-property
Ein Juwel im Zentrum der Klausner Altstadt. Das im Jahre 2007 kernsanierte Gebäude wurde mit viel Liebe zum Detail um- und ausgebaut.
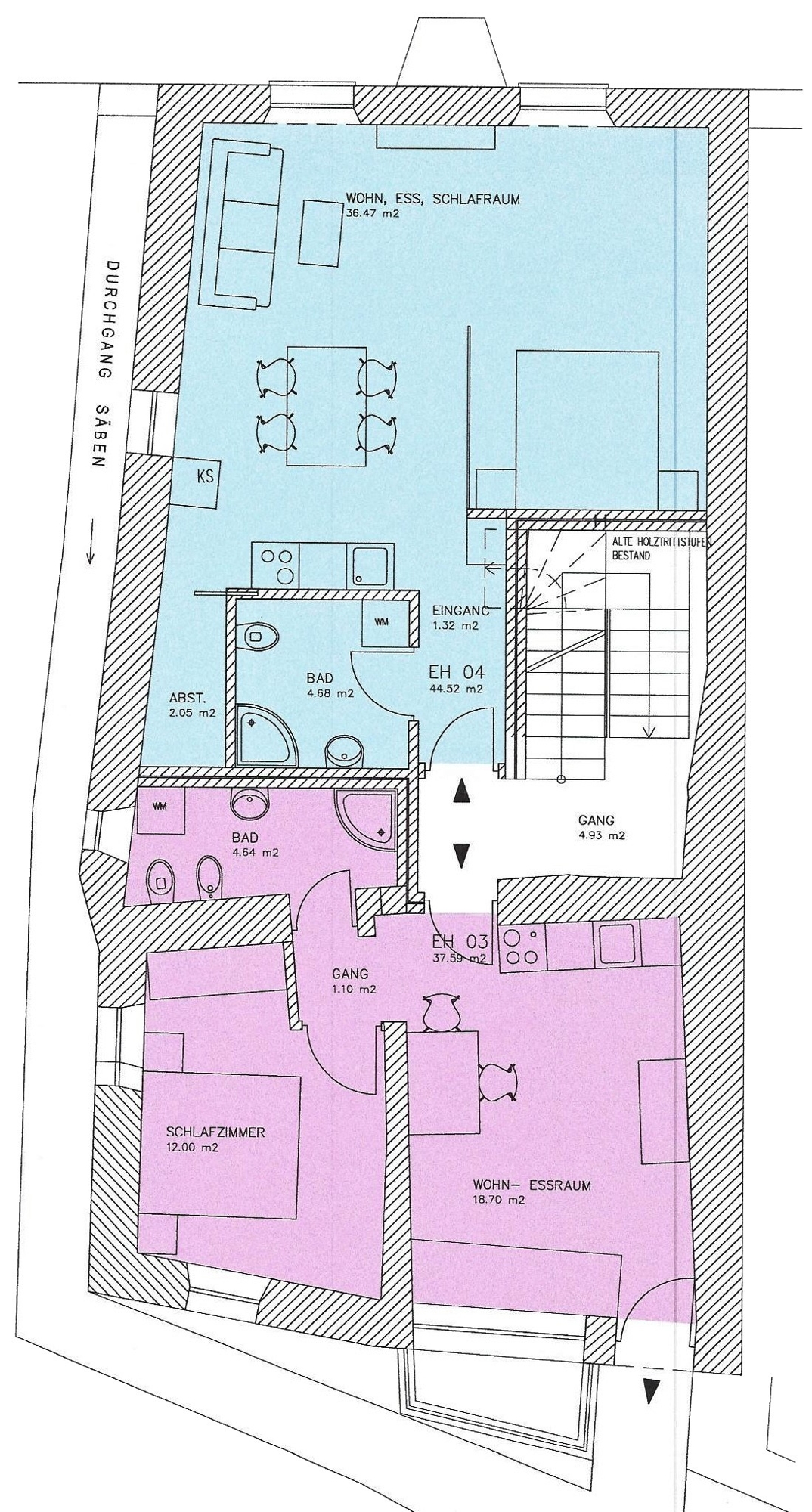
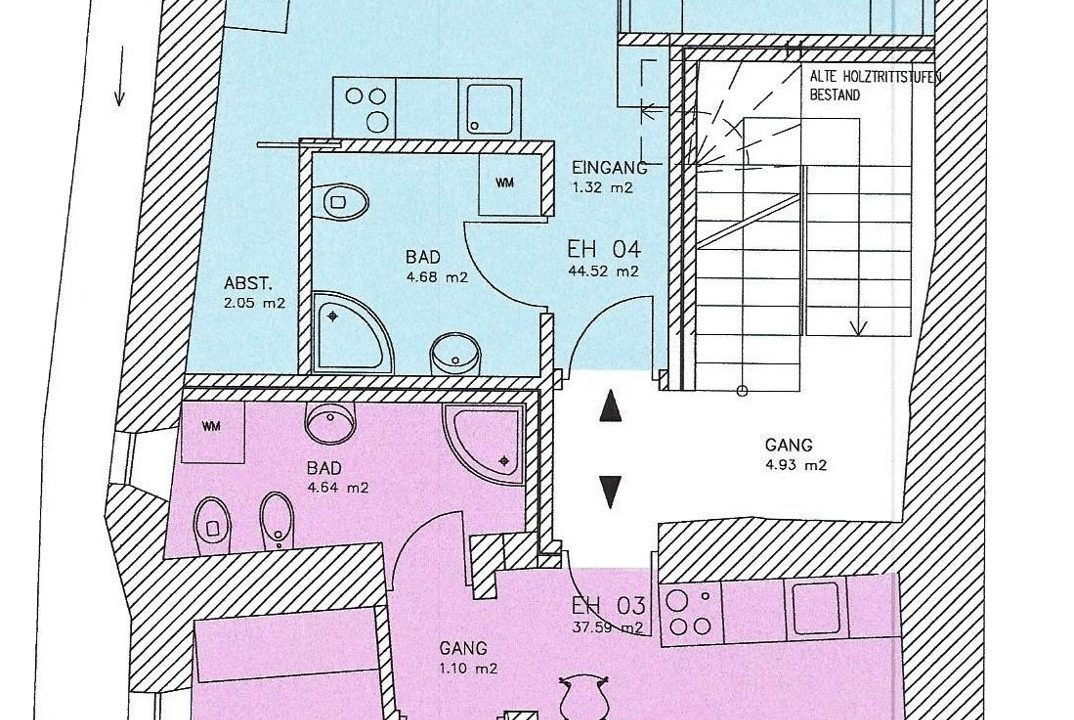
Das Wohn-Geschäftshaus besteht aus einem Geschäftslokal im Erd- und Untergeschoss, einer Wohnung und Studio im 1. Stock, zwei Wohnungen im 2. Stock und zwei als B & B genützt Einheiten im Dachgeschoss .
Die Heizung ist zentral und wird durch Fernwärme gespeist.
Es eines der wenigen Häuser in der Gasse welches die Südfassade frei hat.
Baujahr 2008
Heizung zentral mit Fernwärme
Warmwasser zentral mit Fernwärme
Zentral und trotzdem ruhig – 3 Zimmer Wohnung in Quirein…
450.000€
Villa Helena - hochwertige, luxuriöse Wohnungen im Zentrum von Bozen…
 Deutsch
DeutschOwning a home is a keystone of wealth… both financial affluence and emotional security.
Suze Orman